Бутиков медицински център VIRELLA
Представяме ви бутикова възможност - Медицински център Virella!
Място, кеото вдъхва доверие още от входа и е съвкупност от модерна визия, простор и самостоятелен двор, където пациентите се чувстват спокойни.
Това е VIRELLA – бутиков медицински център в една от най-предпочитаните зони на Пловдив – кв. Христо Смирненски, само на метри от Гребната база.
Тук всеки детайл е съобразен с нуждите на лекарите и комфорта на пациентите – от качествените материали и стилната архитектура, до уединената локация с бърз достъп от основните пътни артерии на града.
Центърът е идеален избор за зъболекари, педиатри, терапевти, семейни лекари и корпоративни клиники, които искат да предложат услуга на най-високо ниво и да развият своята практика в престижна среда.
👉 На разположение са три кабинета (А1, А2 и А3), които могат да бъдат закупени поотделно или обединени в цялостен медицински център
⚡ Възползвайте се сега – предлагането е ограничено, а цената ще се повиши след ноември.

Свободен
Кабинет А1
Кабинет A1 в бутикова сграда до Гребната база – перфектното място за зъболекар, педиатър или друг медицински специалист. Разполага с приемна, чакалня, две функционални помещения, собствена веранда (34,72 кв.м) и зелена площ (62,21 кв.м).
📐 Застроена площ: 87,90 кв.м
🏢 Квадратура с общи части : 100,08 кв.м

Свободен
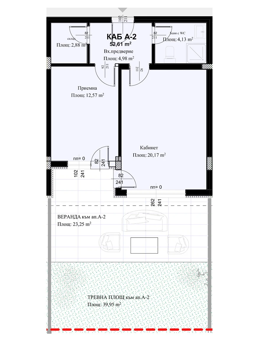
Кабинет А2
Кабинет A2 с приемна (12,57 кв.м) и основно помещение (20,17 кв.м), разположен на първи етаж в бутикова сграда до Гребната база. Има самостоятелна веранда от 23,25 кв.м и тревна площ от 39,95 кв.м.
📐 Застроена площ: 52,6
🏢 Квадратура с общи части: 59,90 кв.м

Свободен
Кабинет А3
Кабинет A3 – идеален за зъболекар, терапевт или семеен лекар. С основно помещение (20,56 кв.м), приемна (12,57 кв.м) и склад (3,39 кв.м), този кабинет предлага удобство, функционалност и комфорт. Разполага с просторна веранда (24,38 кв.м) и тревна площ (41,89 кв.м) – чудесни за зона за отдих или детски кът.
📐 Застроена площ: 53,41 кв.м
🔢 Квадратура с общи части: 60,81 кв.м