Свободни жилища във VIRELLA
VIRELLA е бутикова жилищна сграда, разположена в една от най-предпочитаните зони на Пловдив – кв. Христо Смирненски. Локацията съчетава тишина и спокойствие на вътрешна улица с бърз достъп до Гребната база, ул. Рая, Пещерско шосе и центъра на града.
Сградата предлага модерна визия, премиум материали и внимателно подбрана среда, която я превръща в отличен избор за семейства и хора, които ценят качеството на живот.
В момента са налични само 11 свободни жилища – 2 четиристайни, 2 тристайни и 7 двустайни апартамента. Всяко от тях е с функционално разпределение, просторни дневни зони и светли помещения, съобразени с нуждите на съвременното семейство.
Свържете се с нас за оглед и индивидуална оферта.

Свободен
А8 - Двустаен Апартамент
Двустаен апартамент | 67,89 кв.м | Западно изложение | Етаж 2, Секция А
Компактно и удобно жилище с добре разпределени пространства: дневна (21,67 кв.м), спалня (12,57 кв.м), баня с тоалетна (4,13 кв.м), складово помещение (2,88 кв.м) и тераса (4,35 кв.м). Западното изложение гарантира приятна следобедна светлина и уютна атмосфера. Отличен избор за собствен дом или доходоносна инвестиция.
📐 Застроена площ: 59,02 кв.м
🏢 Квадратура с общи части: 67,89 кв.м

Свободен
А9 - Двустаен Апартамент
Двустаен апартамент | 75,16 кв.м | Югозападно изложение | Етаж 2, Секция А
Просторен и светъл апартамент с добре балансирано разпределение: дневна (22,62 кв.м), спалня (14,71 кв.м), баня с тоалетна (4,29 кв.м), складово помещение (1,91 кв.м), входно предверие (5,07 кв.м) и тераса (5,35 кв.м). Югозападната ориентация осигурява изобилие от естествена светлина и уют през целия ден. Отличен избор за собствен дом с усещане за пространство и комфорт.
📐 Застроена площ: 65,34 кв.м
🏢 Квадратура с общи части: 75,16 кв.м

Свободен
А14 - Двустаен Апартамент
Двустаен апартамент | 67,89 кв.м | Западно изложение | Етаж 3, Секция А
Функционален и уютен апартамент с добре разпределени пространства: дневна (21,67 кв.м), спалня (12,57 кв.м), баня с тоалетна (4,14 кв.м), складово помещение (2,88 кв.м) и тераса (4,35 кв.м). Западното изложение осигурява следобедна светлина и приятна атмосфера – чудесен избор за собствен дом или сигурна инвестиция.
📐 Застроена площ: 59,02 кв.м
🏢 Квадратура с общи части: 67,89 кв.м

Свободен
А13 - Двустаен Апартамент
Двустаен апартамент | 69,66 кв.м | Северозападно изложение | Етаж 3, Секция А
Удобно и добре организирано жилище с дневна (21,67 кв.м), спалня (12,57 кв.м), баня с тоалетна (4,13 кв.м), складово помещение (3,14 кв.м), отделно перално помещение (1,99 кв.м) и тераса (2,85 кв.м). Северозападната ориентация осигурява спокойна и прохладна атмосфера – практичен избор за градски живот или сигурна инвестиция.
📐 Застроена площ: 60,56 кв.м
🏢 Квадратура с общи части: 69,66 кв.м

Свободен
А18 - Четиристаен Апартамент
Четиристаен апартамент | 178,51 кв.м | Северозападно изложение | Етаж 4, Секция А
Впечатляващ четиристаен апартамент с просторна дневна (36,58 кв.м) и три комфортни спални (19,57; 18,82; 16,17 кв.м), всяка осигуряваща максимално удобство и лично пространство. Разполага с три бани с тоалетни (4,72; 4,71; 4,53 кв.м) и две тераси (11,49 и 4,28 кв.м) – идеални за релакс на открито. Северозападната ориентация гарантира прохлада и комфорт дори в горещите месеци. Отличен избор за голямо семейство или хора с високи изисквания към пространството и качеството на живот.
📐 Застроена площ: 156,23 кв.м
🏢 Квадратура с общи части: 178,51 кв.м

Свободен
Б3 - Тристаен апартамент
Тристаен апартамент | 100,08 кв.м + веранда и двор | Североизточно изложение | Партер, Секция Б
Просторно и светло жилище с удобна дневна (22,67 кв.м), две големи спални (14,02 и 15,01 кв.м), две бани с тоалетни (4,81 и 5,05 кв.м) и складово помещение (3,08 кв.м). Към апартамента има широка веранда (34,72 кв.м) и самостоятелна тревна площ (62,21 кв.м) – идеални за семейство с деца, зона за игра или релакс на открито. Североизточното изложение осигурява спокойна и приятна атмосфера. Отличен избор за просторен и комфортен живот в зелена и тиха среда.
📐 Застроена площ: 87,90 кв.м
🏢 Квадтарута с общи части: 100,08 кв.м

Свободен
Б7 - Двустаен апартамент
Двустаен апартамент | 75,16 кв.м | Северозападно изложение | Етаж 2, Секция Б
Комфортно и добре разпределено жилище с просторна дневна (22,63 кв.м), спалня (14,71 кв.м), баня с тоалетна (4,29 кв.м), складово помещение (1,91 кв.м), входно предверие (5,07 кв.м) и удобна тераса (5,34 кв.м). Северозападното изложение осигурява прохлада и спокойствие. Отличен избор за хора, които ценят стил, функционалност и уютна, модерна среда.
📐 Застроена площ: 65,34 кв.м
🏢 Квадратура с общи части: 75,16 кв.м

Свободен
Б9 - Двустаен апартамент
Двустаен апартамент | 69,66 кв.м | Северозападно изложение | Етаж 2, Секция Б
Удобен и добре организиран апартамент с функционално разпределение: дневна (21,68 кв.м), спалня (12,57 кв.м), баня с тоалетна (4,13 кв.м), складово помещение (3,14 кв.м), отделно перално помещение (1,99 кв.м) и тераса (2,85 кв.м). Северозападната ориентация осигурява прохлада и спокойна атмосфера. Практичен избор за спокоен живот или доходоносна инвестиция в качествено строителство.
📐 Застроена площ: 60,56 кв.м
🏢 Квадратура с общи части: 69,66 кв.м

Свободен
Б13 - Двустаен апартамент
Двустаен апартамент | 75,16 кв.м | Северозападно изложение | Етаж 3, Секция Б
Слънчев и добре разпределен апартамент с просторна дневна (22,63 кв.м), спалня (14,71 кв.м), баня с тоалетна (4,29 кв.м), складово помещение (1,91 кв.м) и удобна тераса (5,35 кв.м). Северозападното изложение осигурява приятна атмосфера и прохлада. Идеален избор за млади двойки или инвестиция в качествено строителство в модерна бутикова сграда.
📐 Застроена площ: 65,34 кв.м
🏢 Квадратура с общи части: 75,16 кв.м

Свободен
Б16 - Четиристаен апартамент
Четиристаен апартамент | 191,98 кв.м | Южно изложение | Етаж 4, Секция А
Премиум комфорт и изключителна функционалност
Добре дошли в един от най-впечатляващите апартаменти във VIRELLA – просторен, стилен и създаден за модерен семеен живот без компромиси. Разположен на четвъртия етаж, този четиристаен апартамент съчетава изключителен вътрешен комфорт с интелигентно разпределение и отлично южно изложение.
🌿 Голяма дневна зона – 36,58 кв.м, с излаз към основна тераса (11,67 кв.м), идеална за релакс, срещи с приятели или сутрешно кафе на открито.
🛌 Три самостоятелни спални, всяка със собствен характер и максимално удобство:
Спалня 1 – 19,57 кв.м със собствена баня и тоалетна (4,72 кв.м)
Спалня 2 – 16,17 кв.м с отделен санитарен възел (4,71 кв.м)
Спалня 3 – 18,82 кв.м с директен достъп до самостоятелна тераса (4,29 кв.м)
🧺 Допълнително мокро помещение (4,53 кв.м) – практично място за пералня, сушилня и допълнително съхранение.
Този апартамент предлага не просто квадратура, а усещане за простор, светлина и стил – в бутикова сграда с ограничен брой апартаменти и тиха локация близо до Гребната база и зелени площи. Идеален за семейства, които търсят нещо повече от жилище – истински дом.
📐 Застроена площ: 156,28 кв.м
🏢 Квадратура с общи части: 191,98 кв.м

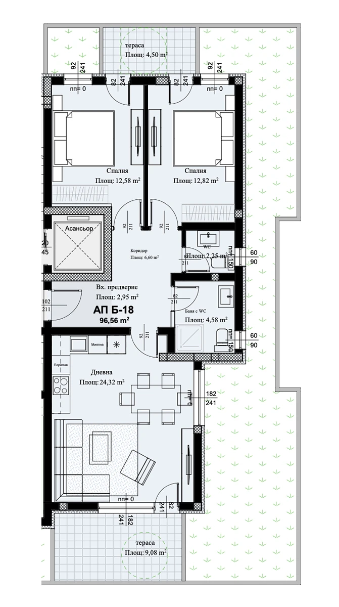
Свободен
Б18 - Тристаен Апартамент
Тристаен апартамент | 95,47 кв.м | Източно изложение | Етаж 4, Секция Б
Просторен и светъл апартамент с функционално разпределение – просторна дневна (24,87 кв.м) с излаз към удобна тераса (8,82 кв.м), две комфортни спални (15,25 и 13,68 кв.м), две бани с тоалетни за максимално удобство и складово помещение (2,34 кв.м). Източното изложение осигурява мека сутрешна светлина и приятна атмосфера през целия ден. Отличен избор за семеен комфорт или дългосрочна инвестиция в качествено строителство.
📐 Застроена площ: 95,47 кв.м
🏢 Общо застроена площ с общи части: 124,51 кв.м