Секция А - Етаж 3

Продаден
А10 - Тристаен
Тристаен апартамент | 105,45 кв.м | Югоизточно изложение | Етаж 2, Секция А
Просторно и светло жилище с отлична организация: дневна (24,17 кв.м), две спални (15,09 и 12,17 кв.м), баня с тоалетна (5,05 кв.м), отделна тоалетна (2,56 кв.м), складово помещение (2,10 кв.м) и тераса (4,34 кв.м). Югоизточната ориентация гарантира много естествена светлина и уют през целия ден. Идеален избор за семеен дом с функционално и удобно разпределение.
📐 Застроена площ: 91,68 кв.м
🏢 Квадратура с общи части: 105,45 кв.м

Продаден
А11 - Двустаен
Двустаен апартамент | 67,57 кв.м | Етаж 3, Секция А
Удобно разпределен апартамент с дневна (21,50 кв.м), спалня (12,57 кв.м), баня с тоалетна (4,13 кв.м), складово помещение (2,88 кв.м) и тераса (4,00 кв.м). Подходящ както за живеене, така и за отдаване под наем. Отлична локация в бутикова сграда с модерна и стилна визия.
📐 Застроена площ: 58,74 кв.м
🏢 Квадратура с общи части: 67,57 кв.м

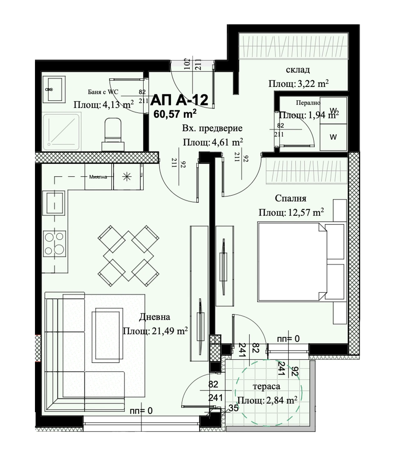
Продаден
А12 - Двустаен
Двустаен апартамент A12 | 69,67 кв.м | Източно изложение | Етаж 3, Секция А
Функционален апартамент с практично разпределение: дневна (21,49 кв.м), спалня (12,57 кв.м), баня с тоалетна (4,13 кв.м), складово помещение (3,22 кв.м) и тераса (2,84 кв.м). Източното изложение осигурява мека утринна светлина и уютна атмосфера през целия ден. Отличен избор за спокоен и удобен дом.
📐 Застроена площ: 60,57 кв.м
🏢 Квадратура с общи части: 69,67 кв.м

Свободен
А13 - Двустаен
Двустаен апартамент | 69,66 кв.м | Северозападно изложение | Етаж 3, Секция А
Удобно и добре организирано жилище с дневна (21,67 кв.м), спалня (12,57 кв.м), баня с тоалетна (4,13 кв.м), складово помещение (3,14 кв.м), отделно перално помещение (1,99 кв.м) и тераса (2,85 кв.м). Северозападната ориентация осигурява спокойна и прохладна атмосфера – практичен избор за градски живот или сигурна инвестиция.
📐 Застроена площ: 60,56 кв.м
🏢 Квадратура с общи части: 69,66 кв.м

Свободен
А14 - Двустаен
Двустаен апартамент | 67,89 кв.м | Западно изложение | Етаж 3, Секция А
Функционален и уютен апартамент с добре разпределени пространства: дневна (21,67 кв.м), спалня (12,57 кв.м), баня с тоалетна (4,14 кв.м), складово помещение (2,88 кв.м) и тераса (4,35 кв.м). Западното изложение осигурява следобедна светлина и приятна атмосфера – чудесен избор за собствен дом или сигурна инвестиция.
📐 Застроена площ: 59,02 кв.м
🏢 Квадратура с общи части: 67,89 кв.м

Продаден
А15 - Двустаен
Двустаен апартамент | 75,16 кв.м | Югозападно изложение | Етаж 3, Секция А
Просторно и комфортно жилище с добре обмислено разпределение: дневна (22,62 кв.м), спалня (14,71 кв.м), баня с тоалетна (4,99 кв.м), складово помещение (1,91 кв.м) и тераса (5,35 кв.м). Югозападната ориентация гарантира топла следобедна светлина и уютна атмосфера през цялата година. Отличен избор за собствен дом или стабилна инвестиция.
📐 Застроена площ: 65,35 кв.м
🏢 Квадратура с общи части: 75,16 кв.м