Секция А - Етаж 4

Продаден
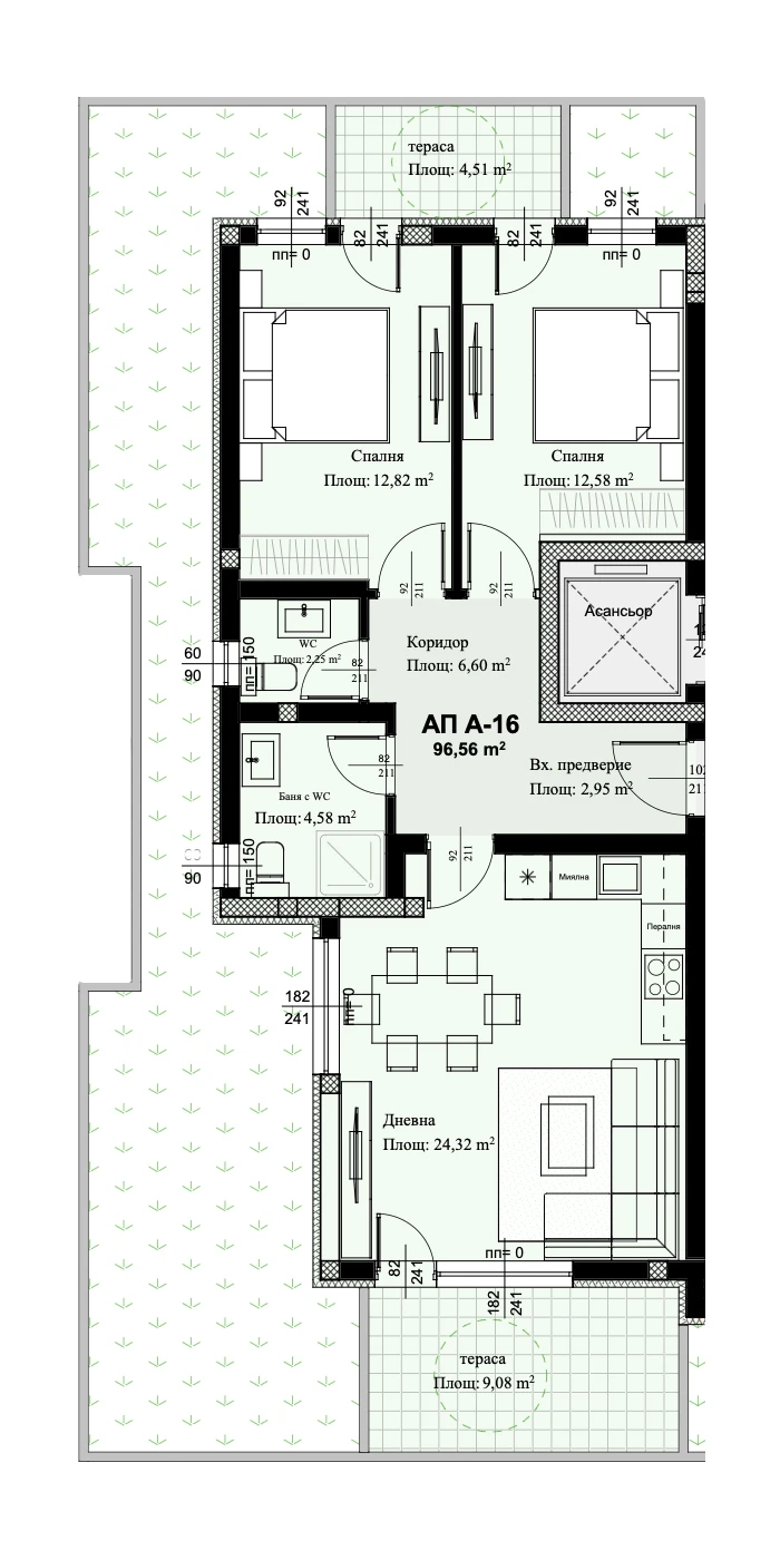
А16 - Тристаен
Тристаен апартамент A16 | 157,13 кв.м | Южно изложение | Етаж 4, Секция А
Просторен и слънчев апартамент, идеален за семеен дом с усещане за комфорт и простор. Разполага с голяма дневна (24,32 кв.м), две спални (12,82 и 12,58 кв.м), баня с тоалетна (4,58 кв.м), отделна тоалетна (2,25 кв.м) и две тераси – едната с площ 4,51 кв.м, другата – по-голяма и удобна за отдих, 9,08 кв.м. Южната ориентация гарантира много естествена светлина и уютна атмосфера през целия ден.
Апартаментът предлага отлично разпределение без компромис с пространството – подходящ както за живеене, така и за дългосрочна инвестиция. Бутикова сграда на топ локация до Гребната база и парк „Отдих и култура“.
📐 Застроена площ: 96,61 кв.м
🏢 Квадратура с общи части: 157,13 кв.м

Продаден
А17 - Тристаен
Тристаен апартамент | 109,36 кв.м | Източно изложение | Етаж 4, Секция А
Просторно и светло жилище с удобно разпределение – дневна (24,87 кв.м), две спални (15,22 и 13,68 кв.м), две бани с тоалетна (4,50 и 4,14 кв.м), складово помещение (2,34 кв.м) и голяма тераса (8,82 кв.м). Източното изложение осигурява меко сутрешно слънце и приятна атмосфера за целия ден. Отличен избор за семеен дом с всички удобства.
📐 Застроена площ: 95,47 кв.м
🏢 Квадратура с общи части: 109,36 кв.м

Свободен
А18 - Четиристаен
Четиристаен апартамент | 178,51 кв.м | Северозападно изложение | Етаж 4, Секция А
Впечатляващ четиристаен апартамент с просторна дневна (36,58 кв.м) и три комфортни спални (19,57; 18,82; 16,17 кв.м), всяка осигуряваща максимално удобство и лично пространство. Разполага с три бани с тоалетни (4,72; 4,71; 4,53 кв.м) и две тераси (11,49 и 4,28 кв.м) – идеални за релакс на открито. Северозападната ориентация гарантира прохлада и комфорт дори в горещите месеци. Отличен избор за голямо семейство или хора с високи изисквания към пространството и качеството на живот.
📐 Застроена площ: 156,23 кв.м
🏢 Квадратура с общи части: 178,51 кв.м