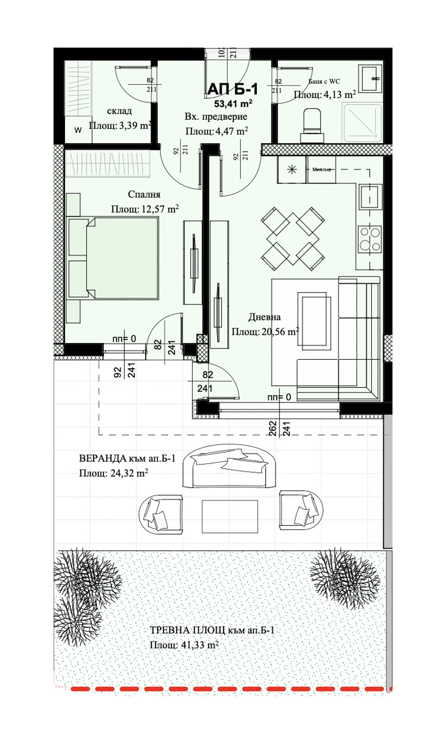
Двустаен апартамент Б1 | 60,71 кв.м + веранда и двор | Югоизточно изложение | Партер, Секция Б
Компактен и уютен апартамент с функционално разпределение: дневна (20,56 кв.м), спалня (12,57 кв.м), склад (3,39 кв.м) и баня с тоалетна (4,13 кв.м). Към апартамента има просторна веранда (23,89 кв.м) и самостоятелна тревна площ (40,63 кв.м) – перфектни за отдих, детски кът или място за домашен любимец. Югоизточното изложение осигурява светлина и уют през целия ден. Идеален избор за спокоен начин на живот в бутикова сграда.
📐 Застроена площ: 53,41 кв.м
🏢 Квадратура с общи части: 60,71 кв.м